Sauna on kodin sydän. Vai oliko se keittiö? Ei, kyllä se on sauna. Ainakin jos minulta kysytään. Saunottua tulee vähintään joka toinen päivä, joten suunnittelukin on tehtävä huolella.
Saunasuunnitelma on nyt valmis. Meidän saunassa on ollut jonkun aikaa jo paneelit seinässä, mutta lauteiden mitoitus saatiin nyt vasta valmiiksi. Saunatoimittajana Kotimestareiden kautta on Lapin Laude ja sieltä saatiin hyvät suunnitelmat, joihin teimme vain pientä päivitystä.
Lauteiden materiaali on sama kuin seinässä ja katossakin eli lämpökäsitelty haapa. Edellisessä saunassamme kikkailtiin ehkä enemmän. Seinät ja katto oli tervaleppää, lauteet lämpökäsiteltyä mäntyä ja kiukaan tausta mustaa sisustuskiveä. Nyt siis tuntui, että pitää valita yksinkertaisempi linja.
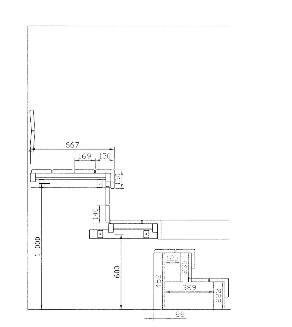
Saunan ehkä tärkein asia jo koko talon pohjapiirrustusta muokatessa oli riittävä koko vastakkaisia lauteita varten. Sauna ei ole nytkään kovin suuri, mutta mielestämme riittävän suuri ja muutenkin tilavin sauna, mitä meillä tähän mennessä on koskaan ollut. Mitat ovat 1,7×2,6m eli n. 4,4m2. Vastakkain tulee siis 1,7m leveät lauteet. Tilaa on mukavasti ainakin kuudelle.
Lauteet tehdään normaalia leveämmästä laudasta (160x28mm), jolloin vaikutelma on ehkä hieman massiivisempi.




Saunan valmistumista ja ensilöylyjä odottaa kyllä paljon. Tosin nyt tässä uudessa talossamme on edessä ennalta odottamaton kädenvääntö: sauna vs ulkoporeallas. Moni ulkoaltaan omistaja on kommentoinut, että saunominen on jäänyt vähemmälle. Saunan lämmitys kestää 30-45min, ulkoporeallas on aina lämmin. Saa nähdä miten käy, positiivinen ongelmahan tämä on. Ehkä ensi vuonna kaikki vapaa-aika tulee käytettyä kylpyhommissa..