Talo rakentuu Lahteen alueelle, jossa on sekä uutta että vanhaa rakennusta.
Uskomme ja toivomme, että ensimmäinen taloprojekti opetti meitä sen verran, että toisesta talosta tulee kaikin puolin toimivampi pakkaus. Vaikka ei siinä edellisessäkään mitään vikaa ollut..
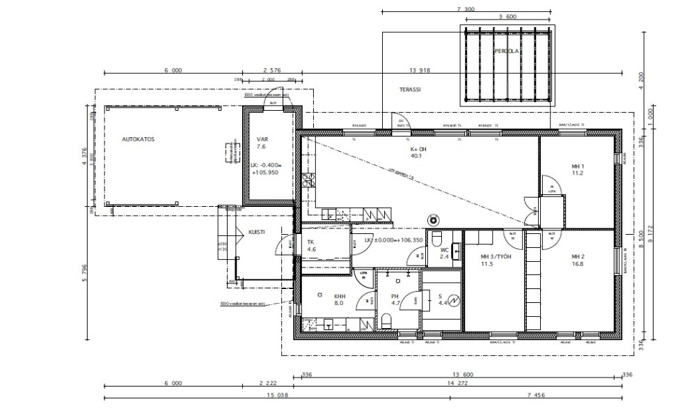
Pyrimme siihen, että vaikka tuleva kotimme onkin pienempi, se olisi fiksumpi. Nuo vähenevät neliöt ovat väistämättä haaste, mutta toistaiseksi tuntuu, että pelkästään siirtyminen kahdesta kerroksesta yhteen tasoon tuo lisää avaruutta pienemmästä neliömäärästä huolimatta.
Talossa on kolme makuuhuonetta, joista yksi on työhuone, toinen on tytön ja kolmas vanhempien makuuhuone. Vanhempien makuuhuone on suunniteltu niin tilavaksi, että sinne voidaan sijoittaa tarvittaessa työpöytä ja muuttaa työhuone tavalliseksi makuuhuoneeksi. Makuuhuoneet haluttiin myös sijoittaa omaan tilaansa parioven taakse.
Tuulikaappi oli myös ehdoton valinta, jotta vaatteet ja kengät saadaan pidettyä omassa tilassaan oven takana, poissa olohuoneessa olevien katseilta.
Hukkaneliöt on pyritty poistamaan ja kaikki tila käyttämään mahdollisimman tehokkaasti. Eteinen on ehkä ainut tila, johon neliöitä tuli liikaa, mutta toisaalta tilaa ei voitu pienemmäksikään tehdä. Toivotaan, että eteisestä saadaan tehtyä viihtyisä aula, joka toivottaa tervetulleeksi kotiin. Ideana on tuoda tilaan värejä koko talon väripaletista.
Budjetti pidetään järkevänä mutta tavoitteena on kuitenkin se, että tiukka budjetti ei näy lopputuloksessa, ainakaan liikaa.
Ole mukana projektissamme. Kysy ja kommentoi. Toivottavasti rakennusblogistamme on apua myös muille kohtalotovereille.
Pohjakuva:
Julkisivukuvat:




